Habitation passive à Spontin
CHEF DE PROJET: Equipe Delta
Client : Privé – Chantier terminé 2013
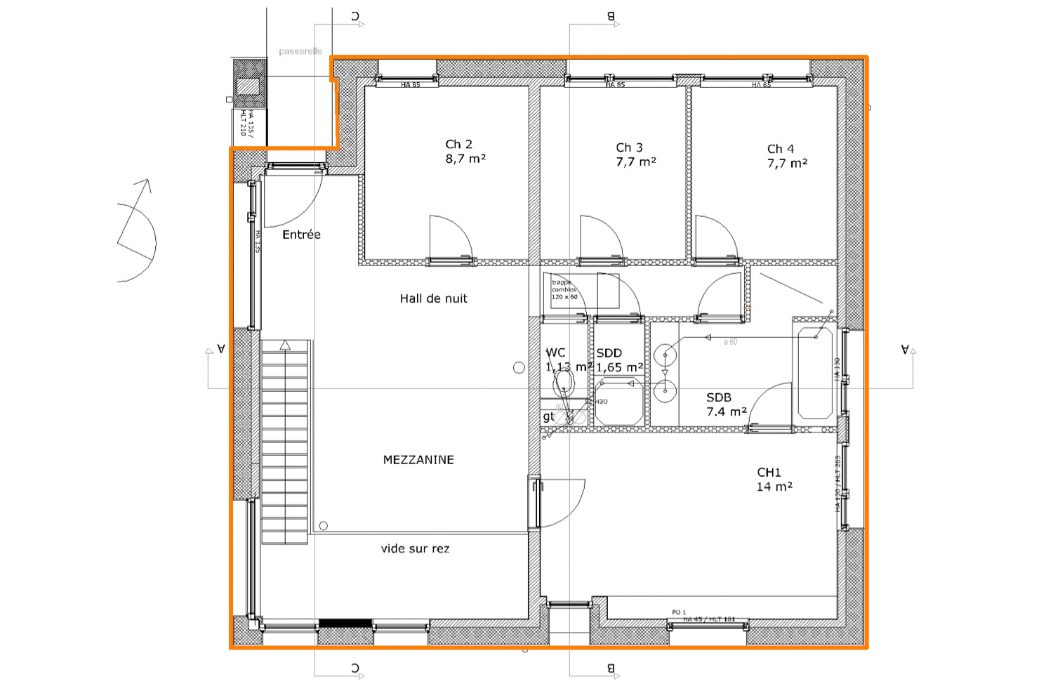
Maison unifamiliale résolument contemporaine certifiée “passive” assurant une consommation annuelle de 15KWh/m².an pour le chauffage. Surchauffe de maximum 5%.







Commentaires récents