Double habitation à Soye
CHEF DE PROJET: Equipe Delta
Client : Privé – Chantier terminé 2015
Services : Architecture – Gestion et suivi de chantier (entreprises séparées)
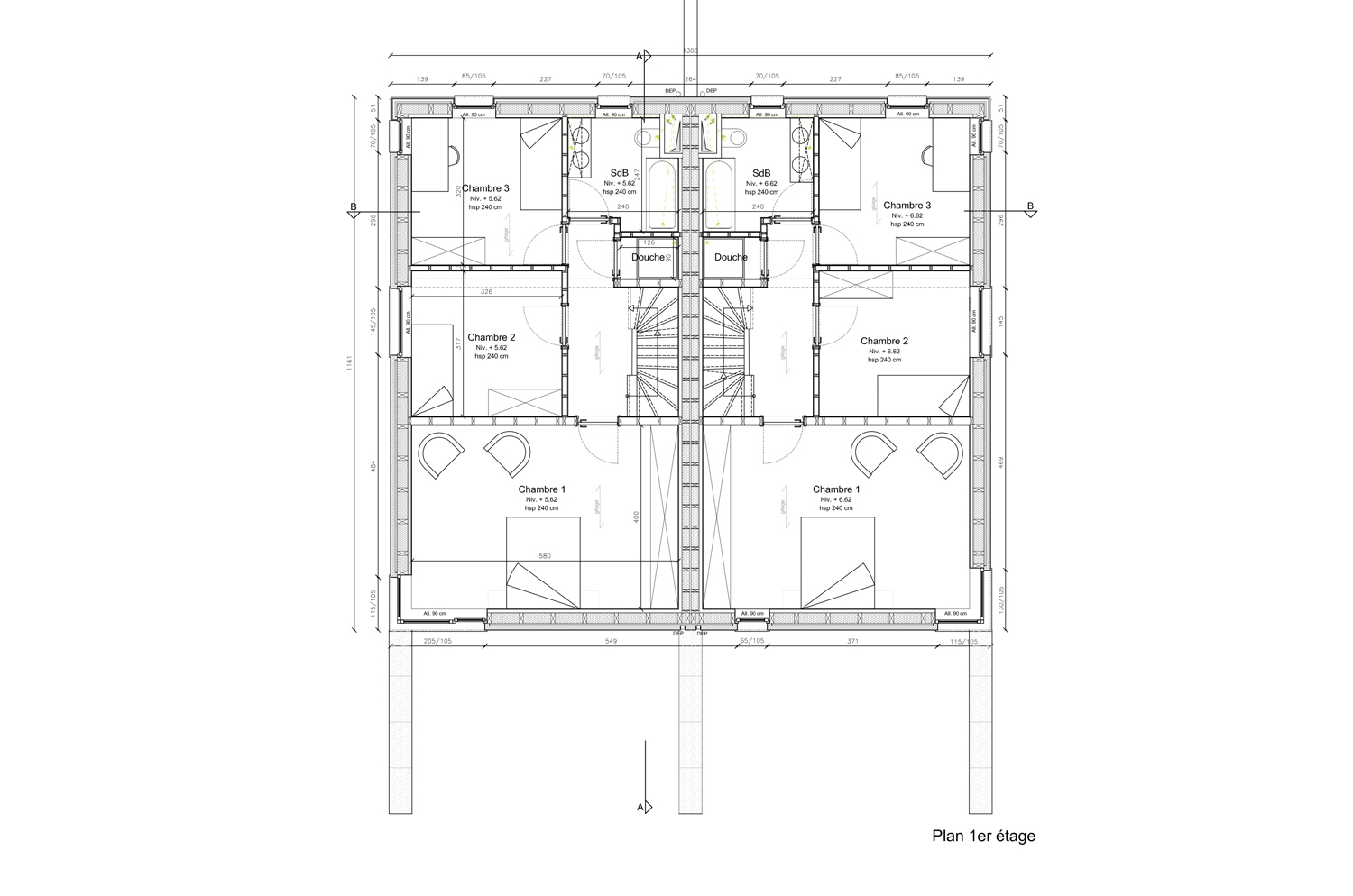
Double maison basse énergie en ossature bois. Maisons compactes et rationnelles en vue de location.
















Commentaires récents