Habitation à Bouge

CHEF DE PROJET: Arch. Luc LUYTEN

Client : Privé – Chantier terminé 2012

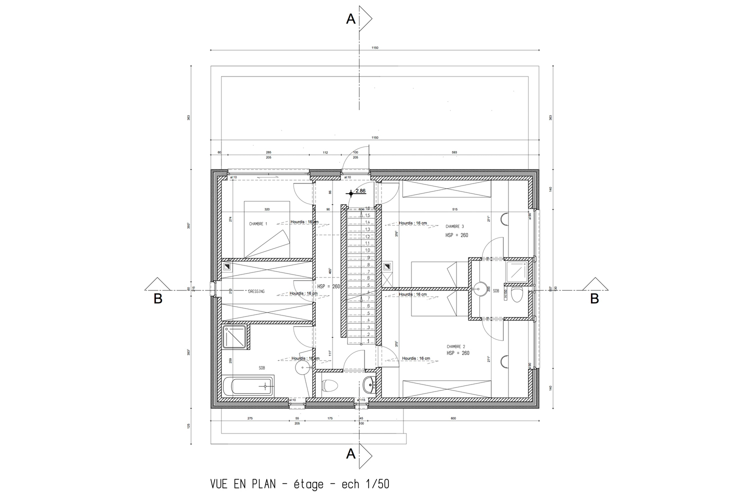
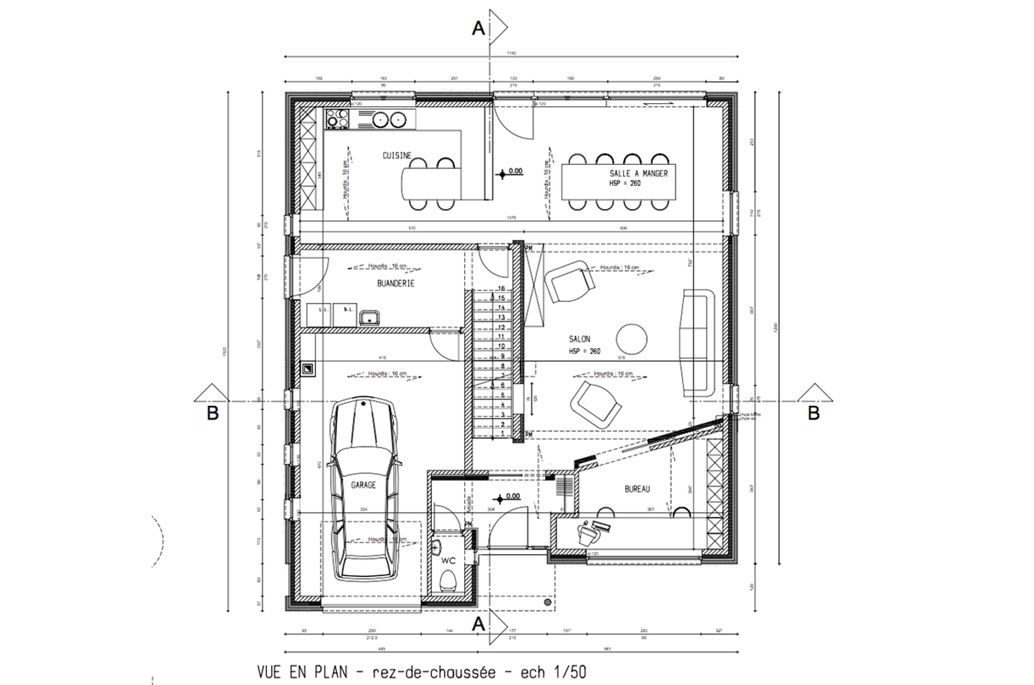
Maison uni-familiale répondant aux prescriptions du lotissement. Gestion des volumes en toits plats afin de répondre au programme du maitre de l’ouvrage.