Transformation d’une grange
CHEF DE PROJET: Equipe Delta
Client : Privé – Chantier terminé 2010
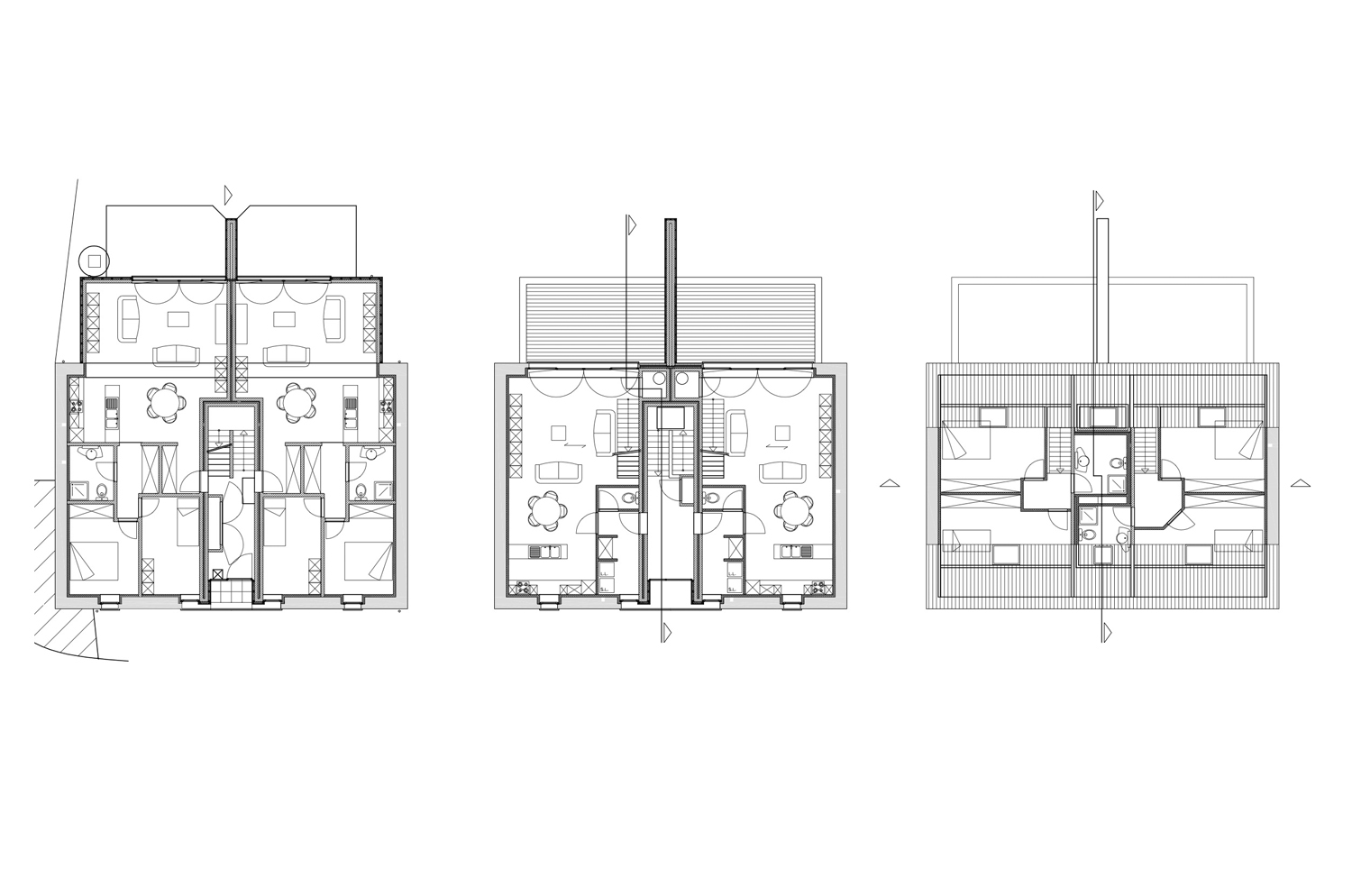
Création de quatre logements dont deux duplex dans une grange à Fernelmont. Réalisation de terrasses sur un nouveau volume en extension sur l’arrière. Le projet préserve le caractère de la façade existante. le bois est utilisé pour les nouveaux volumes et se marie avec la brique existante.












Commentaires récents