Extension d’une habitation à Mazy
CHEF DE PROJET: Equipe Delta
Client : Privé – Chantier terminé 2009
Services : Architecture
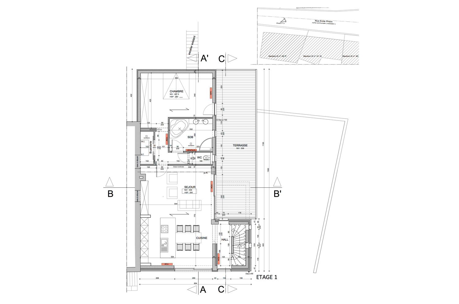
Construction d’un nouveau logement sur le garage existant. Volumétrie en continuité du bâtiment existant
CHEF DE PROJET: Equipe Delta
Client : Privé – Chantier terminé 2009
Services : Architecture
Construction d’un nouveau logement sur le garage existant. Volumétrie en continuité du bâtiment existant
Commentaires récents