Extension à Bouge
CHEF DE PROJET: Equipe Delta
Client : Privé – Chantier terminé 2009
Services : Architecture
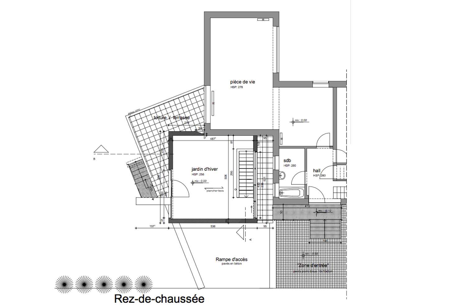
Extension d’une habitation, création d’un garage et d’un jardin d’hiver. Volumétrie contemporaine s’articulant à l’architecture classique du bâtiment existant.







Commentaires récents