Antenne administrative passive
CHEF DE PROJET: Equipe Delta
Client : Public – Chantier terminé 2014
Budget : 4.000.000€ hors frais
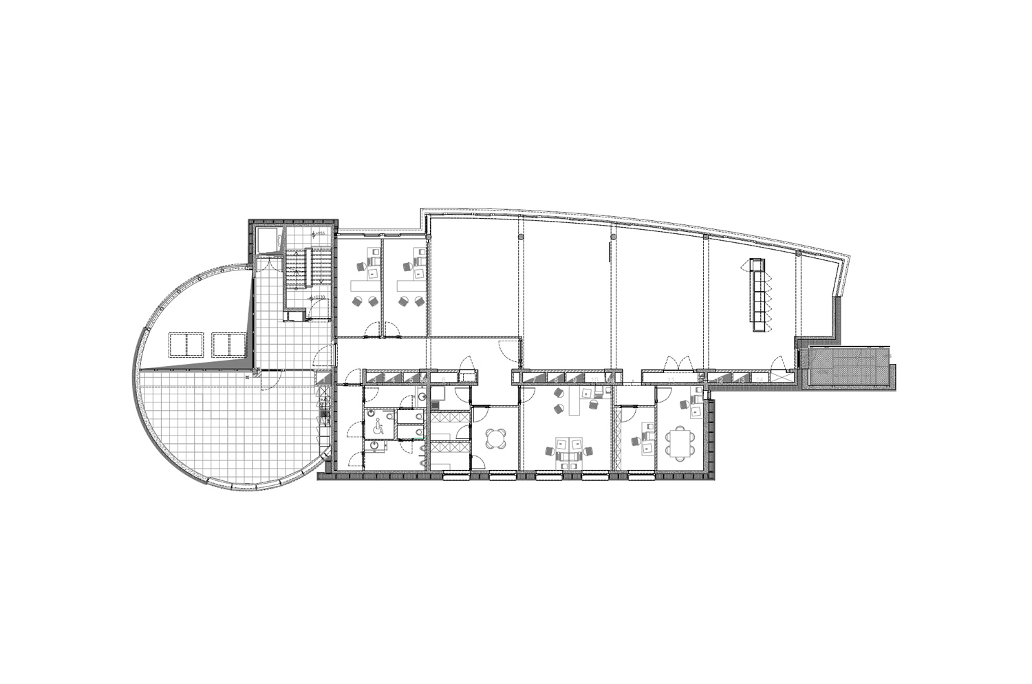
Antenne locale de la commune d’Ottignies au cœur de Louvain-la-Neuve. Le Bâtiment regroupe les services communaux et une antenne de la police locale. Le bâtiment répond au standard passif.









Commentaires récents