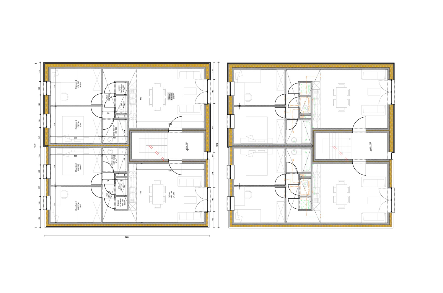
Bâtiment de logements
CHEF DE PROJET: Equipe Delta
Client : Marché public – 2015
Projet non retenu pour la création d’un immeuble de 6 logements sociaux à Ciney. Le projet était accompagné d’une gestion d’un parking et d’un parc en fond de parcelle.
CHEF DE PROJET: Equipe Delta
Client : Marché public – 2015
Projet non retenu pour la création d’un immeuble de 6 logements sociaux à Ciney. Le projet était accompagné d’une gestion d’un parking et d’un parc en fond de parcelle.
Commentaires récents