Aménagements de bureaux
CHEF DE PROJET: Equipe Delta
Client : Privé – Avant projet
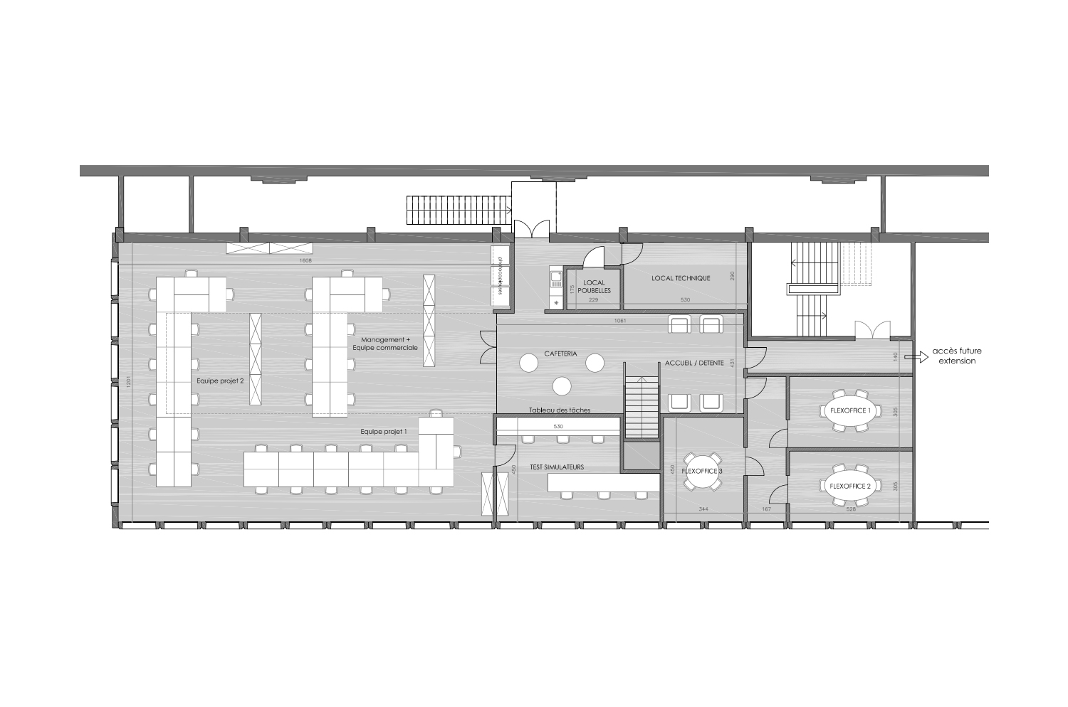
Mise en concurrence pour l’aménagement des bureaux à Namur de la compagnie TRANSURB développant des simulateurs conduite pour la SNCB. L’esprit du projet est de transcrire la dynamique de la fonction par des couleurs claires et vive, des formes linéaires et anguleuses.






Commentaires récents