Pharmacie & logements
CHEF DE PROJET: Equipe Delta
Client : Privé – Chantier terminé 2011
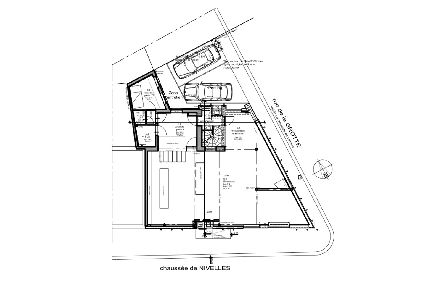
Création d’une pharmacie et d’un appartement dans un bâtiment existant à Suarlée.
CHEF DE PROJET: Equipe Delta
Client : Privé – Chantier terminé 2011
Création d’une pharmacie et d’un appartement dans un bâtiment existant à Suarlée.
Commentaires récents