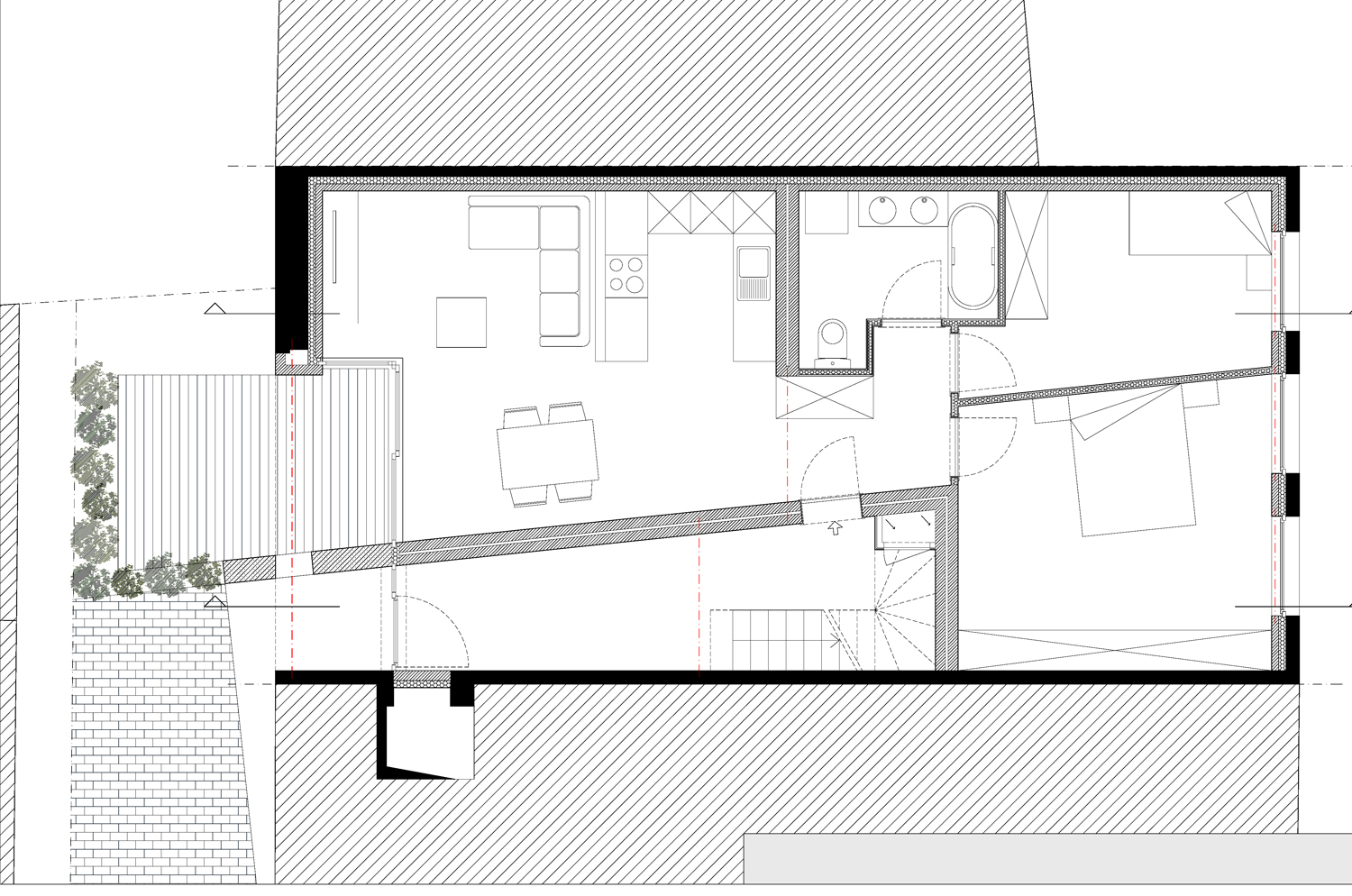
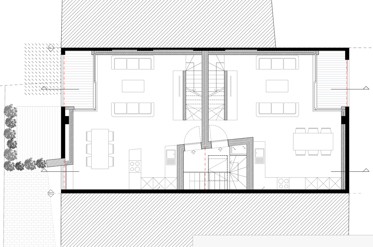
Transformation d’une grange
CHEF DE PROJET: Equipe Delta
Client : Privé – Chantier terminé 2017
Réaffectation d’une grange en arrière de propriété. Création de trois logements.
CHEF DE PROJET: Equipe Delta
Client : Privé – Chantier terminé 2017
Réaffectation d’une grange en arrière de propriété. Création de trois logements.
Commentaires récents