Maisons sociales à Ciney
CHEF DE PROJET: Arch. Michel DE KEYSER
Client : Marché Public – Chantier terminé 2017
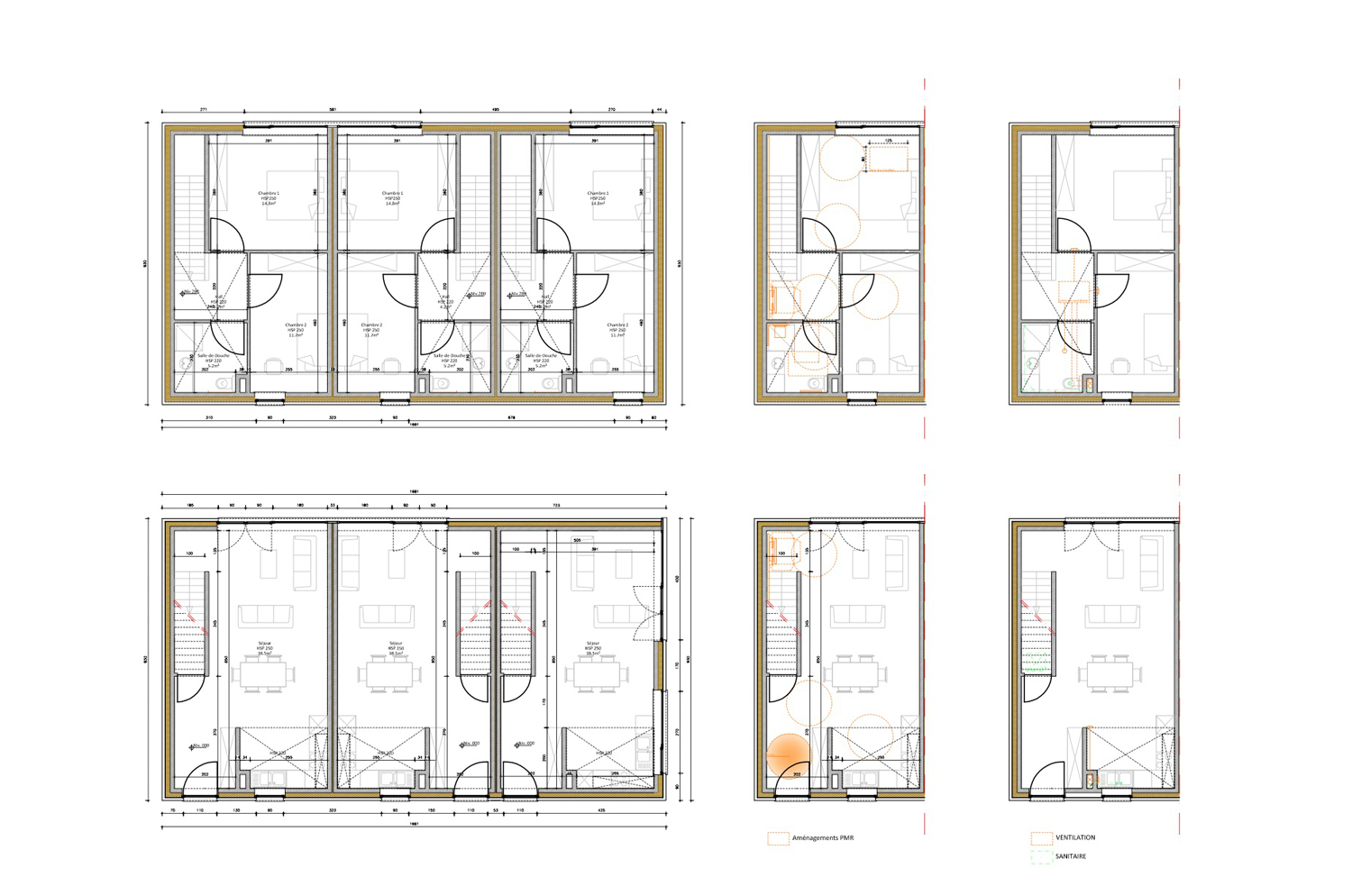
Il s’agit du projet retenu pour la création de 3 maisons sociales deux chambres dans la ville de Ciney. Le projet a été réalisé en intégrant la possibilité d’aménagement futur des dispositifs permettant l’usage du bâtiment aux personnes à mobilité réduite.







Commentaires récents