Habitation à Marchovelette
CHEF DE PROJET: Equipe Delta
Client : Privé – Chantier terminé 2008
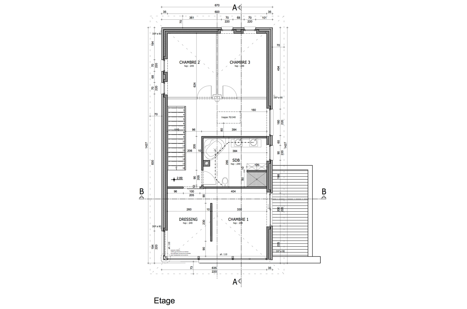
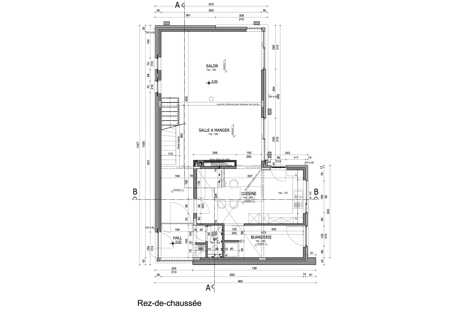
Il s’agit d’un projet d’habitation unifamiliale où l’utilisation de la pierre rappelle le bâti local. Les espaces de vie sont largement ouverts sur le jardin et en intimité par rapport à la rue qu’ils surplombent.













Commentaires récents