Extension d’une habitation à Suarlée
CHEF DE PROJET: Arch. Michel DE KEYSER
Client : Privé – Chantier terminé 2007
Services : Architecture
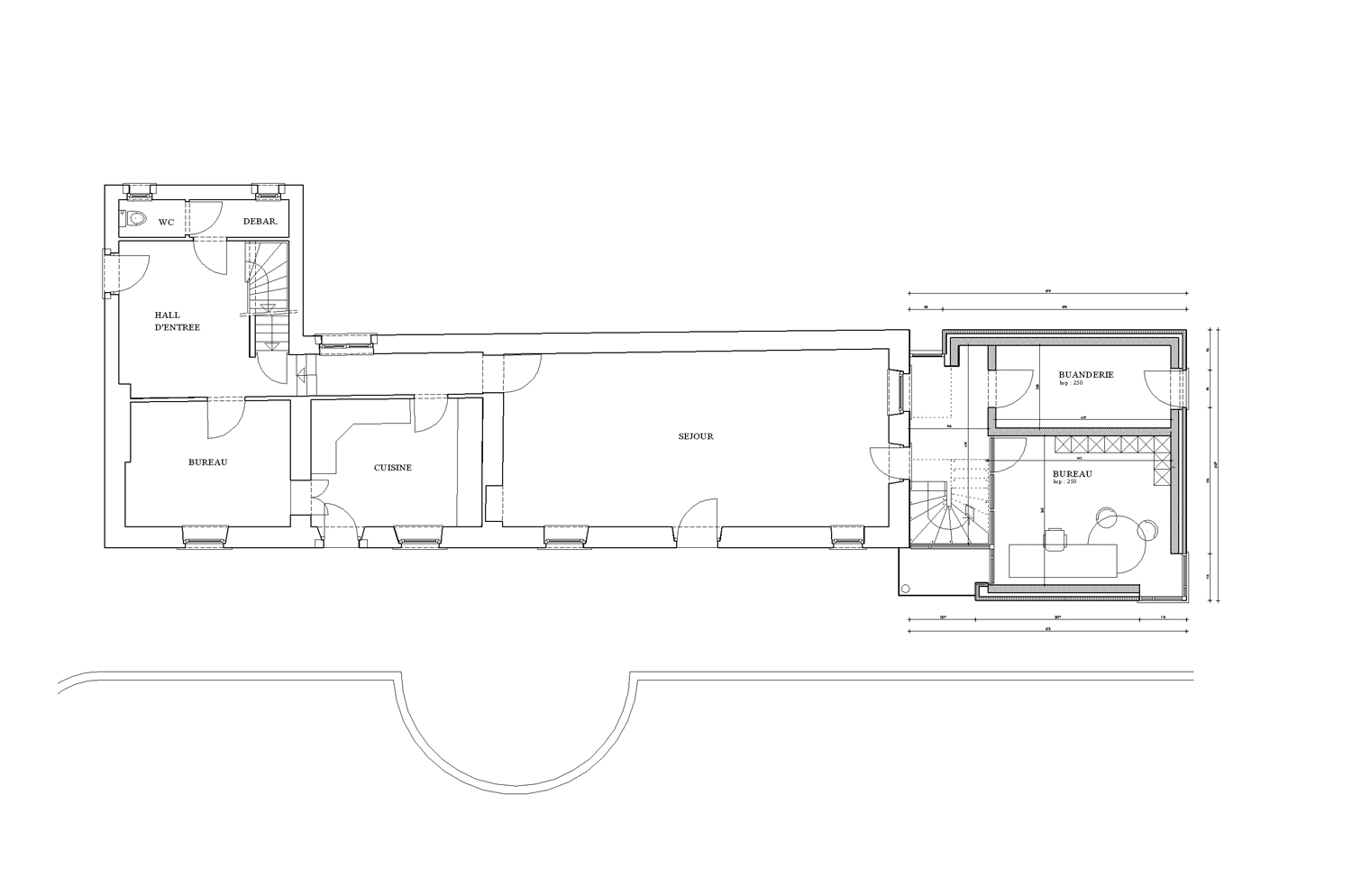
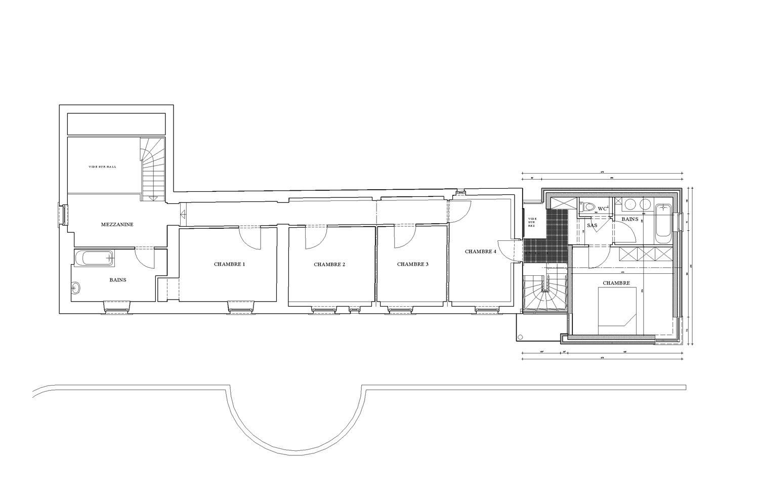
Extension d’une habitation consistant à la réalisation d’une annexe « parents ». Volonté du maître de l’ouvrage d’intégrer le projet dans la continuité du volume existant mais en lui conférant un caractère plus contemporain.









Commentaires récents