Bureaux d’assurance & banque
CHEF DE PROJET: Arch. Luc LUYTEN
Client : Privé – Chantier terminé 2008
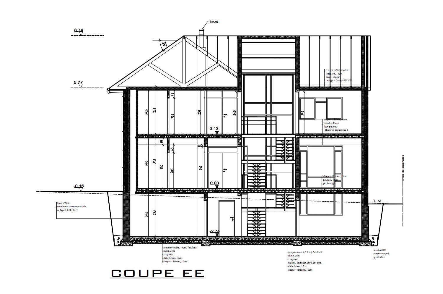
Immeuble de bureaux « DASSY – MASSAGE » courtiers en assurance et agence bancaire Axa. Volonté d’intégration aux maisons voisines tout en ouvrant l’immeuble côté chaussée et offrant des vues côté jardin. La conception reste rationnelle et compacte.










Commentaires récents