Transformation d’une station&shop
CHEF DE PROJET: Arch. Luc LUYTEN
Client : Privé – Chantier terminé 2013
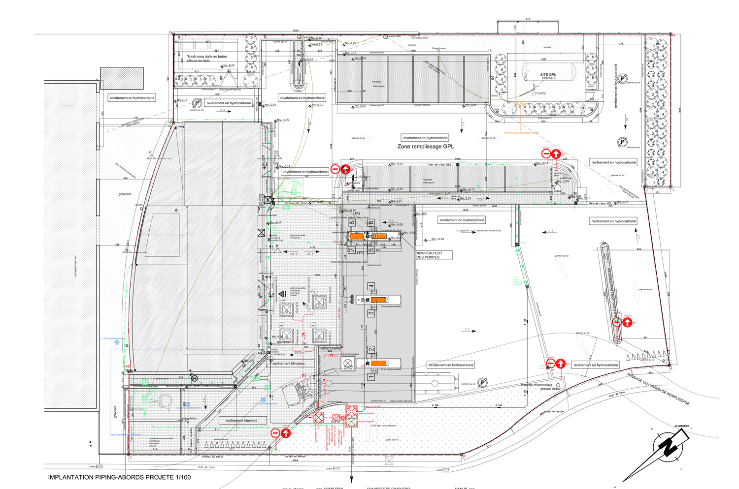
Agrandissement du shop et de la piste développant le commerce de proximité à l’entrée du centre de Malonne.
La superficie de vente a été doublée et réalisée de concert avec Delhaize. Le traitement des façades rythme l’ensemble du complexe à l’aide d’un jeu de trois teintes de briques différentes et visant à créer une composition cohérente.
Un ilot de pompes a été ajouté et l’auvent adapté ainsi que l’ensemble des accès comprenant des parkings supplémentaires.















Commentaires récents