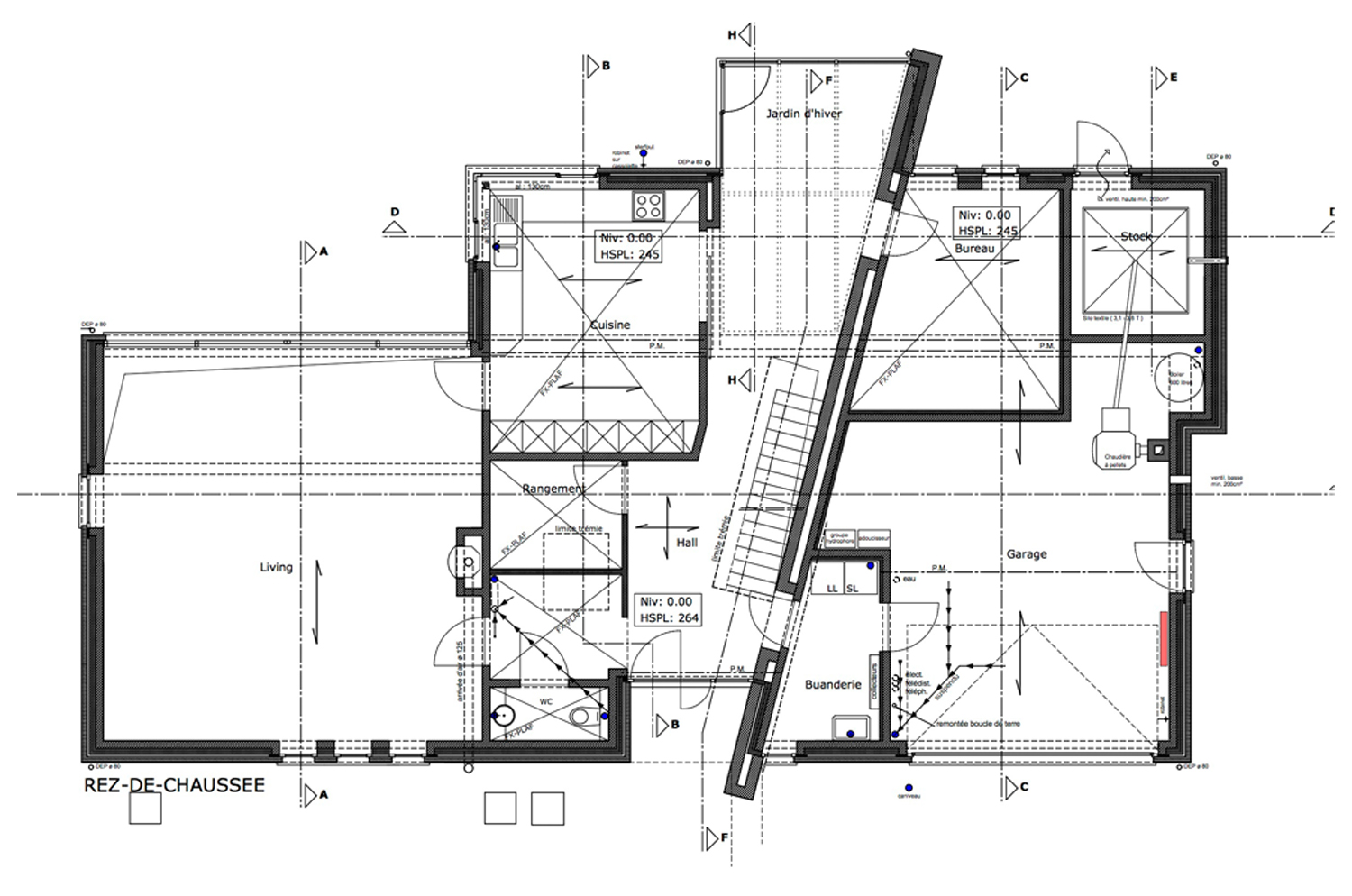
Habitation à Malonne
CHEF DE PROJET: Arch. Luc LUYTEN
Client : Privé – Chantier terminé 2012
Il s’agit d’un bâtiment “basse énergie”.
Un mur de moellons calcaires traverse la villa, les circulations s’y adossant.
Il symbolise la nature fortement en relation avec l’habitat aidé par les larges baies vitrées.










Commentaires récents